Lot 1 Whiskey Mountain EstatesHiawassee, GA 30046
Due to the health concerns created by Coronavirus we are offering personal 1-1 online video walkthough tours where possible.




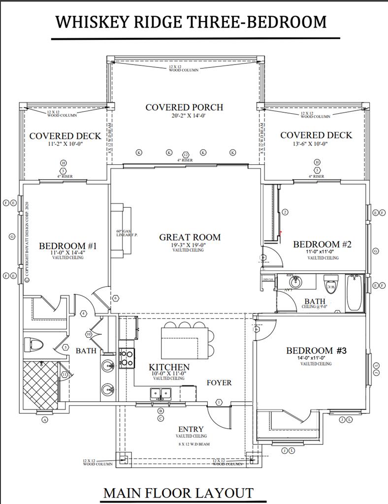
Welcome to lot 1 in Whiskey Mountain Estates, where unparalleled mountain and lake views are showcased to inspire, and your daily conveniences are met thanks to our in-town Hiawassee location. With 3 bedrooms, 2 bathroom, expertly laid out on one floor and 1403 square feet, this new construction home is optimized for the rhythms of your life. The covered front porch prepares you for a wow factor when entering your new modern mountain home, your eyes guided through the expansive great room toward a wall of glass designed to maximize the natural beauty of Lake Chatuge, layers of the Blue Ridge Mountains, and the wooded surroundings of the neighborhood. Expansive covered decks ensure your enjoyment of the outdoors throughout all seasons. Durable materials like cement board and stacked stone clad the home, while soaring wood posts and beams punctuate the exterior with natural warmth. The interior is finished with custom cabinets, real wood flooring, stone counter tops, and upscale tile. If you haven't seen Hiawassee, you're missing out on the best kept secret in the Blue Ridge Mountains. This small town balances new growth while keeping its quiet charm. With convenient shopping, top-notch restaurants, medical services, a current of entrepreneurship, welcoming neighbors, and access to the best lake in the region, you'll be blown away by what is possible in Hiawassee – and how much money you'll save over towns that are more on the radar. Get this home under contract early to be able to select your own finishes and upgrades. Our phenomenal local builder, Discovery House Homes, will craft this masterpiece designed by architect Tony Boyatt, who has been responsible for bringing some of the most iconic modern styles to our area. Our floor plans are exclusively available in our community within Towns County. All renderings and floor plans are copyright Boyatt Designs and may not be reproduced. Come home to Whiskey Mountain Estates in Hiawassee!
| a month ago | Listing updated with changes from the MLS® | |
| a month ago | Listing first seen on site |
Listing data provided by Northeast Georgia Board of Realtors. Information deemed reliable but not guaranteed. Last checked: 2026-04-15 12:18 AM UTC