321 Hamilton RoadBlairsville, GA 30512
Due to the health concerns created by Coronavirus we are offering personal 1-1 online video walkthough tours where possible.




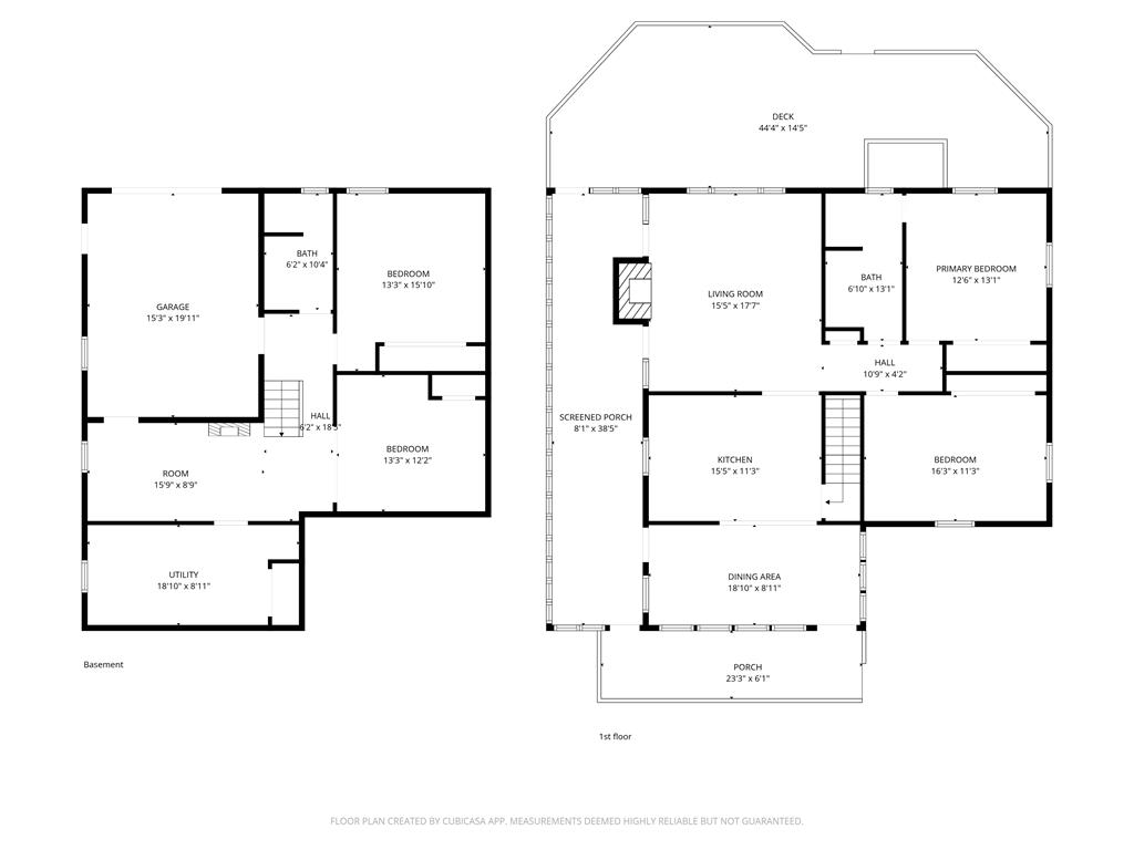
Turnkey ranch with fully finished basement offering 3 bedrooms, 2 baths and two bonus rooms downstairs as well as drive under garage and separate laundry room. Enjoy the seasonal mountain views from the enclosed sunroom or ample decks. Circular driveway is paved and leaves plenty of room for parking including a detached carport. Newer roof, water heater, paint, gutter guards (Leaf Filter) and recently serviced septic. Large, private, mostly wooded lot. All of this very near downtown Blairsville for shopping, dining and soaking in the best of North Georgia. Conveniently located to Georgia Highway 76 which allows you to travel east or west with ease. Ideal balance of location, privacy & convenience. Includes central vacuum, 50 AMP RV hook up & home comes with a 1-year warranty by America's Preferred Home Warranty. Partially furnished. Drivebys welcomed- please note that security cameras are active.
| 3 weeks ago | Listing updated with changes from the MLS® | |
| 3 weeks ago | Listing first seen on site |
Listing data provided by Northeast Georgia Board of Realtors. Information deemed reliable but not guaranteed. Last checked: 2026-04-14 05:06 PM UTC
Did you know? You can invite friends and family to your search. They can join your search, rate and discuss listings with you.